Várak és erődített helyek a Kárpát-medencében

FelsővadászMagyarországBorsod-Abaúj-Zemplén vármegyeAbaúj-Torna történelmi vármegye - Castellum, Rákóczi-kastély

  • Áttekintés
  • Történelem
  • Fotók
  • Alaprajzok
  • Ábrázolások
  • Légifotók
  • Térkép

Utolsó frissítés: 2025.09.08.

Felsővadász, castellum, Rákóczi-kastély

Felsővadászon a ma Rákóczi (volt Vay)-kastély néven ismert épület - a település Vadász-pataktól K-re lévő részének D-i szélén - a templomhoz közel, de tőle egy utcával elválasztott területen helyezkedik el. Jelenleg általános iskolaként használják. A domboldalban fekvő egyemeletes kastély egy középső téglalap alaprajzú, részben alápincézett kéttraktusos főtömbből és annak átellenes (ÉNy-i és DK-i sarkaihoz) egy-egy toronyszerűén kapcsolódó bővítményből áll. A főtömb Ny-i oldalának tengelyében pedig egy nyaktaggal csatíakozó négyzetes torony helyezkedik el, földszintjén az épület főbejáratával. Az épület kialakítása alaprajzilag hasonlóságot mutat Golop és Vaja 1590 körül épített várkastélyaival. Felsővadászon napjainkra már semmi nem utal arra, hogy épület egykor erődített volt. 

A történeti irodalomban a felsővadászi erődített kastély első alkalommal Forgách Ferenc históriájában bukkan fel, aki beszámol arról, hogy az erődítményt a törökök 1567-ben felgyújtották és elfoglalták.  Erről az ostromról, mint a kastélyra vonatkozó legismertebb eseményről a későbbi munkák is rendszerint beszámolnak. 

1878-ban Vincze Gábor tette közzé a kastély 1631. évi inventáriumát, majd Soós Elemér foglalkozott részletesebben a várkastéllyal, aki egy 1633. évi leltár alapján írta le az épület egykori kialakítását. Eszerint a mai helyén, a dombhát ÉNy-i lejtőjén álló kastélyt ekkor vizesárok vette körül, és az épületet még ugyanabban az évben átépítették és nagyobb ablakokkal látták el. Építési idejét Soós a 16. század első felére tette. 

A századvég nagy összefoglaló monográfiáiban is több helyen szerepel az építmény, majd 1910-ben Puky Andor közölt róla további adatokat, aki az 1567-ben szereplő, török által megostromolt kastélyt - tévesen - az őskori földvár helyére „lokalizálta". Említést tett egyben arról is, hogy a helyi hagyomány a mai kastély egyik helyiségét I. Rákóczi Zsigmond (1544-1608) erdélyi fejedelem születési helyének tartja. Puky szerint azonban a fejedelem inkább az „öles vastag falakkal egy emeletre két szöglettoronnyal" kialakított, majd később többször átépített kastély építője lehetett. 

Az 1930-as évek megyei monográfiái alapvetően a korábbi adatokat ismételték meg kiemelve azt, hogy a Rákóczi család a török ostrom után új kastélyt épített, ami a jelenleg fennállóval azonos. A kastély a műemlékjegyzékekben is szerepel, így Gerecze Péternél, majd Genthon István topográfiáiban. Ez utóbbi szerint az 1850-1860 között teljesen átalakított kastély alapfalai a 16. századból származnak, és ugyanezt állapította meg róla később Joó Tibor is. 

1970-ben H. Takács Marianna foglalkozott részletesen a kastéllyal, amikor a kiadott források elemzése alapján a kastély korára, építőjére és kialakítására vont le következtetéseket. Említi, hogy a kőkastély mellett már az 1631. évi és az 1641. évi összeírások is említenek egy fából épült kúriát, szintén a Rákócziak birtokában. Utal arra is, miszerint a mai kastély udvarán lévő régebbi kúria romjait melynek ma már nincs nyoma - 1945-ben hordták szét. 

Az ismert írott adatok alapján 2001-ben Sárközy Sebestyén és Nováki Gyula foglalta össze a kastélyra vonatkozó adatokat. 

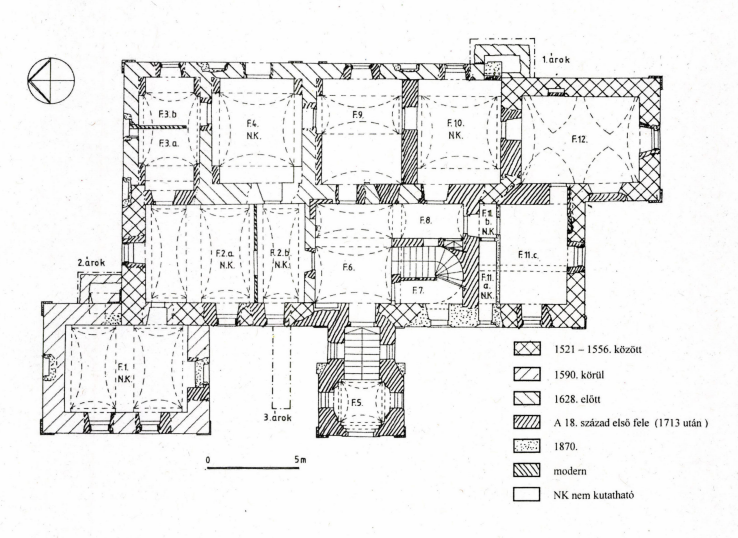
Legutóbb a mai fennálló kastélyépület felújításához kapcsolódva 2006-2007-ben Simon Zoltán végzett falkutatást az épületen (25. ábra). Kutatásai alapján hat különböző korú periódust állapított meg. A legkorábbi rész a középső főtömb elülső, Ny-i traktusa volt a DK-i sarok-toronyszerű résszel, amely 1521-1556 között épülhetett, és ehhez 1590 körül építették hozzá az átellenes (ÉNy-i) sarkon a másik saroktornyot. A következő építési fázisban, amely 1628 előtt történhetett a középső főrészt K-felé egy újabb traktussal egészítették ki. A negyedik periódus, a 18. sz. elején csak kisebb átalakításokat jelentett, és a Ny-i oldal közepén nyaktaggal csatlakozó torony is ekkor épült, amely a Meskó család birtoklásának kezdetéhez köthető. A jelenleg fennálló kastélyépület mai alakját 1870-ben nyerte, amikor Vay Tihamér romantikus stílusban átépítette. Az utolsó periódusban csak néhány modern válaszfal épült. 

Felsővadászt 1492-ben Perényi Imre királyi étekfogó mester 3000.- Ft kölcsön fejében örökjogon adja át Selyebbel együtt Hangácsi Mihály alnádornak. 1503-ban értesülünk arról a perről, amely királyi ítélettel zárult Hangácsi Mihály özvegye: [Rákóczi] Dorottya asszony és Bethlenfalvi Thurzó Péter között Felsővadász és más birtokok és birtokrészek miatt. Az ítélet tartalma nem ismert, de egy 1517. évi oklevél szerint [Rákóczi] Dorottya - aki később perbeli ellenfeléhez Bethlenfalvi Thurzó Péterhez ment feleségül - ekkor már ismét özvegyként, eladja a fenti két birtokot, - kivéve a felsővadászi nemesi telket (curia nobilitaris) - Rákóczi Zsigmondnak, Ferencnek, és Jánosnak valamint Velezdi Kövér Jánosnak 3000 Ftért, melyet még abban az évben a király is megerősít. 

1518-ban II. Lajos király mégis Perényi Imre nádornak adományozza Selyebet és Felsővadászt. Ugyancsak 1518-ban értesülünk arról a panaszról, miszerint Rákóczi Zsigmond és Ferenc más nemesekkel ugyanazon év május l-e körül rátörtek Bethlenfalvi Thurzó Péter özvegye Dorottya felsővadászi kúriájára, ahonnan mintegy 8000 arany Ft értéket (birtokjogaira vonatkozó írásos dokumentumait, ezüstneműjét és pénzét) vittek el. A támadáskor maga Dorottya asszony is elhalálozott, így a kúria a támadókra szállt. A Rákócziak és a Thurzók között a birtokok és a Felsővadászon álló kőház és nemesi telek ügyében keletkezett per 1519-ben békés megegyezéssel, birtokmegosztással zárult. 1521-ben a Perényiekkel is sikerült megegyezésre jutniuk a Rákócziaknak, mely szerint Perényi Ferenc püspök és Perényi Péter abaúji ispán átengedi Felsővadász birtokát az itteni udvarházzal beépített nemesi telekkel (domus et curie nobilitaris) Rákóczi Zsigmondnak, Ferencnek és sógoruknak, Velezdi Kövér Jánosnak. 

A Velezdiek 1527 utáni kihalásával Felsővadász a Rákócziak kizárólagos birtoka lett, ahonnan előnevüket is vették. Felsővadász 1711-ig a Rákócziaké, mint a 18 helységből álló uradalom központja, amit ekkor a Rákócziaktól elkoboznak és 1713-ban királyi adomány útján a Meskó család tulajdonába került. A 19. század elején Meskó Jakabtól a Vay család vette meg, akik 1945-ig voltak tulajdonosai. 

A legkorábbi adat, amely Felsővadászon a Rákócziak birtokában egy kőházat említ a nemesi telken, 1517-ből származik, amely talán még a Perényeikhez köthető. Az azonban csak kevéssé valószínű, hogy az említett épületet a mai kastély legrégibb részével azonosítsuk. 

1556-ban már a Rákócziak felsővadászi castellumát említik; Rákóczi Mihály ide hozta a Réghy Kelemen hangácsi castellumának kifosztásából származó zsákmányt. 1558-ban viszont Réghy Kelemen támadta meg a fosztotta ki a felsővadászi kastélyt. 

1567-ben Hasszán temesvári pasa heves ostrommal elfoglalta és felgyújtotta Rákóczi György felsővadászi castellumát, amelynek védői közül csak két ember maradt életben. 

Az itt álló egykori erődített kastélyról az 1631 és 1704 közötti időből számos összeírást ismerünk, de ezek az összeírások nem ugyanarról az épületről szólnak. Valószínű, hogy a Rákócziaknak több kúriája is állt itt, de a 16. sz. végétől már csak a birtokszerző Zsigmond utódai birtokolnak Felsővadászon. A legkorábbi, 1631. évi összeírás Rákóczi Pál castellumának inventáriumát tartalmazza, amely Simon Zoltán kutatásai szerint - lényegében a ma is álló épületet írja le. Az összeírás az épület körüli védelmi célú építményekről is beszámol, mint: „Egy emelcsős kapu, két lánczával...", „Az templom felül való bástyán".

Forrás:

Nováki Gyula-Sárközy Sebestyén-Feld István: B.-A.-Z. megye várai az őskortól a kuruc korig 

Köszönjük az intézmény vezetőjének a 2025 tavaszán történt látogatásunk alkalmával nyújtott segítségét!

A galéria alsó részében a helyszínről belső fotók és panoráma képek is megtekinthetők.
GPS: É 48° 22.209 (48.370152)
K 20° 55.149 (20.919142)

Információk: A jelenleg oktatási intézményként működő kastély, a település központjában, a templom szomszédságában emelkedő enyhe magaslaton áll. A kastély az iskolaidőn kívűli órákban megtekinthető.

Egyéb időpontokban a következő elérhetőségeken lehet érdeklődni: Telefon: +36-46-444-106 / E-mail: felsovadaszi.iskola@gmail.com

Utolsó frissítés: 2025.09.08.

Ha ezt az üzenetet látja, hirdetésblokkolója letiltotta a térkép betöltését. A hirdetésblokkolót a címsorban megjelenő adatvédelem vagy követés elleni védelem ikonokra kattintva kapcsolhatja ki.
Tekintse meg partnereink ajánlatait a bal oldali térképen, melyen minden szálláshelyet egy ármező jelöl. A térkép a kurzor segítségével mozgatható és nagyítható. További szálláshelyek betöltéséhez nagyítson rá egy településre. Az adott szálláshelyről további információ az ármezőkre kattintva érhető el.
Várak.hu támogatás kérés 2025